Konsoles celtnis SD750 SST316

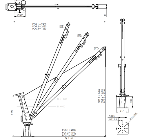
Ar trim regulējamām pozīcijām šis celtņa modelis viegli pielāgojas dažādām celšanas vajadzībām. Atkarībā no izvēlētās pozīcijas celšanas kapacitāte ir līdz 750 kg pie 1 metra, 600 kg pie 1,5 metriem un 500 kg pie 2 metriem.

Pateicoties 360° rotācijas funkcijai, celtni var viegli novietot vajadz

Rādīt vairāk

Produkta kods:
  • Attribute icon

Ar trim regulējamām pozīcijām šis celtņa modelis viegli pielāgojas dažādām celšanas vajadzībām. Atkarībā no izvēlētās pozīcijas celšanas kapacitāte ir līdz 750 kg pie 1 metra, 600 kg pie 1,5 metriem un 500 kg pie 2 metriem.

Pateicoties 360° rotācijas funkcijai, celtni var viegli novietot vajadzīgajā pozīcijā. Kad pozīcija ir izvēlēta, grozāmo kustību var fiksēt, nodrošinot kontrolētu celšanu un nolaišanu. Nerūsējošā tērauda 316 apdare garantē izturību, un pie celtņa iespējams piestiprināt dažādas vinčas vai pat ķēžu blokus. Ideāli piemērots projektiem, kur nepieciešama spēks un elastība!

  • Regulējams darbības diapazons: 1 m, 1,5 m un 2 m
  • Izturīgs un drošs grozāmais celtņa modelis atbilstoši EN13157
  • Iespējams fiksēt grozāmo kustību
  • Celtņa konstrukcija sastāv no 4 daļām ātra uzstādīšana
  • Iespējama 360° rotācija ar roku vai siksnu uz strēles gala
  • Iespējams uzstādīt dažādas vinčas: CW700 un TL1500
  • Standarta materiāls: nerūsējošais tērauds 316. CW700 SST316, TL1500 SST304

Iespējas:

  • 40 cm augstuma pagarinājums
  • ATEX sertificēta 2. un 22. zonai (EX)
      CE II 3G Ex IIC T4 Gc, -20°C<T amb <+70°C 
      CE II 3D Ex IIIC T135°C Dc, -20°C<T amb <+70°C
  • Materiāls: Nerūsējošais tērauds
  • Marķējums: Atbilstoši standartam, CE marķējums
  • Standarts: EN 13157
  • Piezīme: (WLL) un celšanas ātrums ar vinču TL1500